Mantener el agua de una piscina limpia y en condiciones higiénicas es fundamental para disfrutar al máximo de momentos de diversión, relax e inolvidables. Un buen sistema de depuración es el corazón de este proceso, garantizando que el agua esté siempre cristalina y saludable. Si bien el tiempo de depuración puede variar, existe un consenso general entre los expertos sobre cuándo y cuánto tiempo debe funcionar la depuradora, especialmente en el caso de las piscinas con clorador salino.
La Importancia del Proceso de Depuración
El proceso de depuración es mucho más que simplemente hacer circular el agua. Se trata de un ciclo vital que mantiene el equilibrio y la salud de tu piscina. El cloro, el desinfectante más común, es vulnerable a la radiación ultravioleta del sol, que lo descompone rápidamente. Por ello, la depuración debe trabajar en conjunto con el cloro: el primero desinfecta, mientras que el sistema de filtrado elimina las partículas en suspensión.

¿Por Qué la Hora de Depuración es Crucial?
La respuesta a la pregunta sobre cuándo es el mejor momento para depurar una piscina es clara: durante el día, especialmente en las horas de mayor sol. Esto se debe a varias razones clave:
- Lucha contra los rayos UV: El sol, si bien es un elemento deseable para disfrutar de la piscina, es el principal enemigo del cloro. La radiación ultravioleta descompone el cloro de forma acelerada. Al depurar durante las horas de sol, se asegura que el cloro se mantenga activo en los momentos de mayor exposición solar, cuando su acción es más necesaria.
- Uso activo de la piscina: El mayor uso de la piscina suele darse durante las horas centrales del día. Es en este momento cuando más residuos como cremas solares, aceites corporales y células muertas de los bañistas se introducen en el agua. Depurar mientras se usa la piscina permite eliminar estos residuos de forma activa, evitando que se acumulen y deterioren la calidad del agua.
- Eficiencia del clorador salino: El clorador salino genera cloro a partir de la sal durante el ciclo de filtrado. Este proceso es más eficiente cuando hay luz solar, ya que los rayos UV ayudan en la descomposición de los compuestos clorados en el agua. Por lo tanto, para maximizar la producción de cloro y mantener niveles estables, es vital que la depuradora funcione durante las horas diurnas.
Horas de Filtración Diaria: Adaptándose a las Necesidades
La cantidad de horas que debe funcionar tu depuradora no es un número fijo y varía significativamente a lo largo del año y según el uso.
Reglas Generales y Factores a Considerar
Aunque no existe una respuesta única, hay pautas generales que pueden ayudarte a determinar las horas de filtración necesarias:
- Temperatura del agua: A mayor temperatura del agua, más tiempo de filtración se requiere. Una regla práctica común es dividir la temperatura del agua en grados Celsius entre 2. Por ejemplo, si el agua está a 30°C, deberías filtrar la piscina durante aproximadamente 3 horas al día. Sin embargo, esta es una regla muy general y a menudo se queda corta para un mantenimiento óptimo.
- Uso de la piscina: Si la piscina se usa mucho, especialmente durante el verano, la depuradora debe funcionar un mínimo de 6 a 8 horas al día. Un mayor uso implica una mayor carga de bañistas y, por ende, más materia orgánica y necesidad de desinfectante.
- Tamaño de la piscina: Las piscinas más grandes requieren más tiempo de filtración para asegurar que todo el volumen de agua pase por el sistema de filtrado y se mantenga limpia. Para calcular el tiempo de depuración diario, se puede considerar la regla general de dividir el volumen total de agua entre el caudal de la bomba por hora, aunque esto puede ser complejo. Una aproximación más práctica es la mencionada anteriormente, ajustada por el uso y la temperatura.
- Control del nivel de cloro: El parámetro recomendado para el nivel de cloro libre en una piscina con clorador salino suele estar entre 1 ppm y 2 ppm. Es importante comprobar este nivel con un test analizador. Si el nivel de cloro es bajo durante las horas centrales del día, deberá incrementar las horas de funcionamiento de su sistema de cloración salina para generar un mayor nivel de cloro.

Recomendaciones Específicas
- Piscinas residenciales: Generalmente, entre 8 y 12 horas al día es suficiente para la mayoría de las piscinas residenciales. Un buen punto de partida es comenzar con 8 horas y ajustar según sea necesario, observando la claridad del agua y los niveles de cloro. En verano, con el calor y el uso constante, es crucial no bajar de estas 8 horas.
- Piscinas comerciales: Estas piscinas suelen necesitar filtración continua o casi continua debido al alto volumen de uso y a las normativas sanitarias más estrictas.
La Importancia de Repartir las Horas de Depuración
No basta con depurar ocho horas seguidas. Lo verdaderamente importante es repartir esas horas en los momentos en que la piscina más lo necesita. Esto asegura que el cloro se mantenga activo y la filtración sea eficiente durante todo el día.
Cómo MEDIR y AJUSTAR los NIVELES de CLORO en tu Piscina 💧
- División en periodos: Es muy útil dividir el tiempo de filtración en dos periodos. Por ejemplo, puedes filtrar durante 4 horas por la mañana y 4 horas por la tarde. Esto garantiza que el agua esté siendo tratada tanto en las horas de mayor sol como en las de mayor uso.
- Ciclos de mañana y tarde: Siempre es mejor filtrar durante el día, preferiblemente en bloques de mañana y tarde. Si la depuradora trabajara únicamente de noche, el nivel de cloro descendería rápidamente en cuanto saliera el sol, dejando el agua desprotegida.
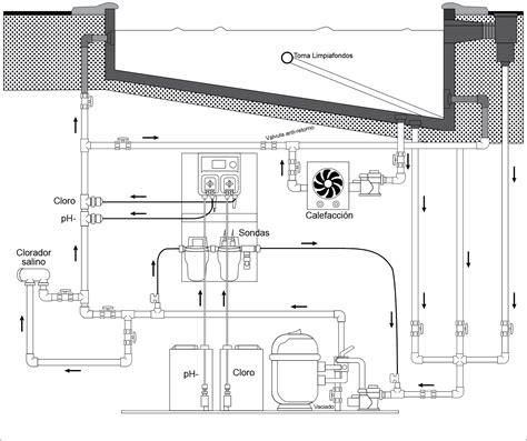
El Clorador Salino: Funcionamiento y Mantenimiento
Los sistemas de cloración salina ofrecen una alternativa cómoda y saludable a los métodos de desinfección tradicionales. El agua de una piscina con clorador salino no huele ni sabe a sal como el agua del mar, siempre y cuando se utilice sal pura (99,8%).
Beneficios de la Cloración Salina:
- Menos agresivo: Es menos agresivo para la piel y los ojos, ya que no se produce esa reacción de la sudor o la crema solar con el cloro tradicional.
- Mantenimiento sencillo: Estos sistemas suelen ser de fácil mantenimiento.
- Desinfección inmediata: La desinfección se efectúa de manera inmediata cuando se instala con la bomba dosificadora.
Puesta en Marcha del Clorador Salino:
- Añadir sal: Añade entre 2 y 3 Kg de sal por metro cúbico de agua de tu piscina. Es recomendable, en la primera puesta, añadir un poco menos de sal de la indicada en el manual para evitar pasarse. Si te pasas, tendrías que vaciar parte de la piscina, medir el nivel y volver a llenar, un proceso costoso y que retrasa el disfrute del baño.
- Disolución: Enciende la depuradora durante 10-12 horas para que la sal se mezcle y disuelva bien. Es importante respetar este tiempo para asegurar que el proceso se efectúe correctamente.
- Encendido del clorador: Una vez la sal esté bien disuelta, enciende el clorador.
- Regulación y control: Revisa periódicamente el nivel de cloro con un medidor de pH. Si es necesario, añade más sal. Es importante regular esto con periodicidad, ya que no estamos dentro del agua y no sabemos los niveles exactos.
Consejo de Instalación: Sería recomendable que la sal se añada por la tarde-noche, y que el clorador, junto con la depuradora, se ponga en funcionamiento a primeras horas de la mañana o a últimas horas de la tarde/noche.
Ajustes Estacionales
La cantidad de horas de depuración debe ajustarse a lo largo del año:
- Verano: Mínimo 6 a 8 horas al día, repartidas preferiblemente en bloques de mañana y tarde. Ajustar la producción del clorador al 60-70% durante el verano es ideal para mantener niveles estables.
- Otras estaciones: Cuando las temperaturas bajan y el uso de la piscina disminuye, puedes reducir el tiempo de filtrado a 2-4 horas al día. No obstante, es crucial mantener la depuración activa, ya que el agua sigue estando expuesta a la suciedad y a los cambios de pH.
En resumen, tener una piscina es sinónimo de disfrute, pero para ello es indispensable un mantenimiento adecuado. El tiempo y el momento del día para la depuración de una piscina con clorador salino son factores determinantes para mantener el agua en perfectas condiciones. Un mantenimiento profesional puede prolongar significativamente la vida útil de tu piscina y evitarte problemas costosos a largo plazo.